埔頂正員林路雙面寬可店透天 (JC115037)
總價 1,880 萬元 降價通知我
座落 桃園市大溪區員林路一段
坪數 49
地坪 33.00
物件型態 透天別墅
用途現況 店面; 空屋
謄本用途 住家用
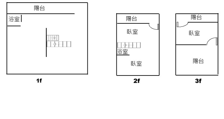
格局 3房/ 3廳/ 2衛/ 3陽台
樓層 1~2 / 2樓
面臨路寬 30 米
朝向 座東南向西北
屋齡 50年
建物結構 加強磚
建物外觀 馬賽克
車位
邊間
公園綠地 埔頂公園
學校學區 仁和國小/仁和國中/大溪高中
商場市場 埔頂市場
特色說明
正30米路雙面寬可做店面
近大溪交流道、埔頂公園、66快速
低總價店面,邊間醒目
權狀資料
主建物 49.15 附屬建物 0.00
公共設施 0.00 土地面積 33.00
公設車位 0.00 權狀車位 0.00
使用分區 第一種住宅區
  1. 坪數=主建物+附屬建物+公共設施(包含公設車位)+權狀車位。
  2. 主建物係指客廳、餐廳、臥房、浴室、廚房等室內面積。
  3. 公共設施係指區分所有建物之全部或部分所有共用之建物面積,像是樓梯間、電梯間、屋頂突出物等。
  4. 上述係由一平方公尺=0.3025坪換算,詳細資料仍以地政機關核發之謄本為準。
忠誠不動產團隊
忠誠不動產投資顧問有限公司
(03)375-0588
歡迎洽詢門市值班人員!
您好,我是忠誠不動產團隊。
請撥門市電話 (03)375-0588
由我為您提供服務。

※ 本網頁所刊登照片如為道路街景或土地示意圖,非廣告標的所在地僅供參考,實際狀況請依使用執照或謄本所載為準。
埔頂正員林路雙面寬可店透天,桃園市大溪區員林路一段
埔頂正員林路雙面寬可店透天,桃園市大溪區員林路一段
埔頂正員林路雙面寬可店透天,桃園市大溪區員林路一段
埔頂正員林路雙面寬可店透天,桃園市大溪區員林路一段
埔頂正員林路雙面寬可店透天,桃園市大溪區員林路一段
埔頂正員林路雙面寬可店透天,桃園市大溪區員林路一段
埔頂正員林路雙面寬可店透天,桃園市大溪區員林路一段
埔頂正員林路雙面寬可店透天,桃園市大溪區員林路一段
埔頂正員林路雙面寬可店透天,桃園市大溪區員林路一段
埔頂正員林路雙面寬可店透天,桃園市大溪區員林路一段
埔頂正員林路雙面寬可店透天,桃園市大溪區員林路一段
埔頂正員林路雙面寬可店透天,桃園市大溪區員林路一段
埔頂正員林路雙面寬可店透天,桃園市大溪區員林路一段

資料處理中,請稍等。